
-
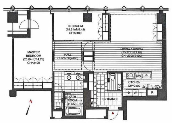
物件名 平河町森タワーレジデンス 部屋番号 16階 所在階 16階部分 間取り 2LDK 専有面積 128.96m² 賃料 1,500,000円 管理費 0円 敷金 6ヶ月 礼金 1ヶ月 保証金 保証金償却 所在地 千代田区平河町2-16-2 交通 東京メトロ有楽町線「永田町」駅 徒歩1分
東京メトロ南北線「永田町」駅 徒歩1分
東京メトロ丸の内線「赤坂見附」駅 徒歩6分賃貸借区分 定期賃貸借 契約期間 3年 入居予定 相談 現況 空室 構造 鉄骨造 規模 地上24階建地下2階 築年月 駐車場 駐輪場 トランクルーム 建物設備 オートロック , 宅配ボックス , エレベーター , モニター付きインターホン , ディスポーザー , 分譲タイプ , デザイナーズ , コンシェルジュサービス , 24時間有人管理 , フィットネスジム施設 , スパ施設 部屋設備・条件 トランクルーム , エアコン , 床暖房 , 光ファイバー , CATV , ビルトイン浄水器 , 浴室暖房乾燥機 , ウォシュレット , バルコニー 諸雑費 備考 ■館内施設:フィットネスルーム、リラックスルーム、スカイラウンジ、ルーフガーデン、足湯
■保険加入要:28400円/2年
■賃貸保証加入要:初回50%、2年目以降10000円
■貸与時ルームクリーニング代:142000円取引態様 媒介 最終更新日 2025年11月01日 ※弊社では契約を完了した時点で掲載を終了しております。

-

営業時間: 10:00~18:00(祝定休)

- 協永ソフトエンジニアリング東京都千代田区六番町6-1 502号室会社案内はこちら




















]

































